

An optimized heat exchanger is designed and engineered to maximize efficiency, heat transfer, and overall performance.
Easy to disassemble and clean.


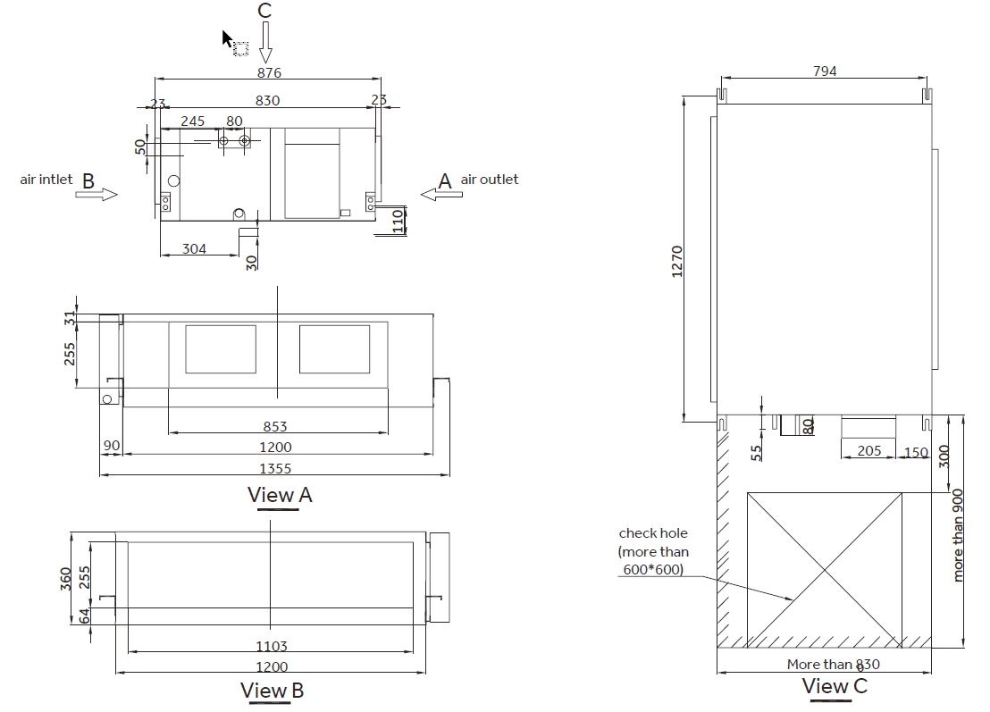
PCB Box cover at a 45 Degree angle easy for wiring and maintenance.
| Specifications | Units | MIDT-48X1EV2AD(F) | MIDT-72X1EV2AD(F) | MIDT-96X1EV2AD(F) |
| Capacity | ||||
| Cooling | kW | 14,00 | 22,60 | 28,00 |
| Heating | kW | 8,90 | 15,20 | 17,80 |
| Electrical Parameters | ||||
| Power supply | Ph/V/Hz | 1/220~230/50/60 | ||
| Ventilation | ||||
| Air flow (H/M/L) | m3/h | 1600/1460/1070 | 4000/3500/3000 | 4500/4000/3600 |
| Sound pressure (H/M/L) |
dB(A) | 48/47/42 | 50/47/44 | 51/48/45 |
| Sound power (H/M/L) |
dB(A) | 61/60/56 | 68/65/60 | 68/66/62 |
| Installation – Dimensions | ||||
| Net dimensions (WxDxH) |
mm | 1500x700x248 | 1512x856x502 | 11512x856x502 |
| Packaged unit dimensions (WxDxH) |
mm | 1718x848x345 | 1558x896x612 | 1558x896x612 |
| Net/gross weight |
Kg | 43,6/50,4 | 102,0/116,0 | 102,0/116,0 |
| Ø Liquid pipe | mm (inch) |
9,52 (3/8) | 12,70 (1/2) | 12,70 (1/2) |
| Ø Gas pipe | mm (inch) |
15,88 (5/8) | 22,22 (7/8) | 22,22 (7/8) |
| Static pressure (Standard/Max.) |
Pa | 100/200 | 100/350 | 100/350 |
MIDT-48X1EV2AD(F)
